giant set of chairs and table shelters nikken sekkei's mixed-use 'sweets bank' in japan

giant set of chairs and table shelters nikken sekkei's mixed-use 'sweets bank' in japan

Sweets bank: ‘a large living room in the city’

 

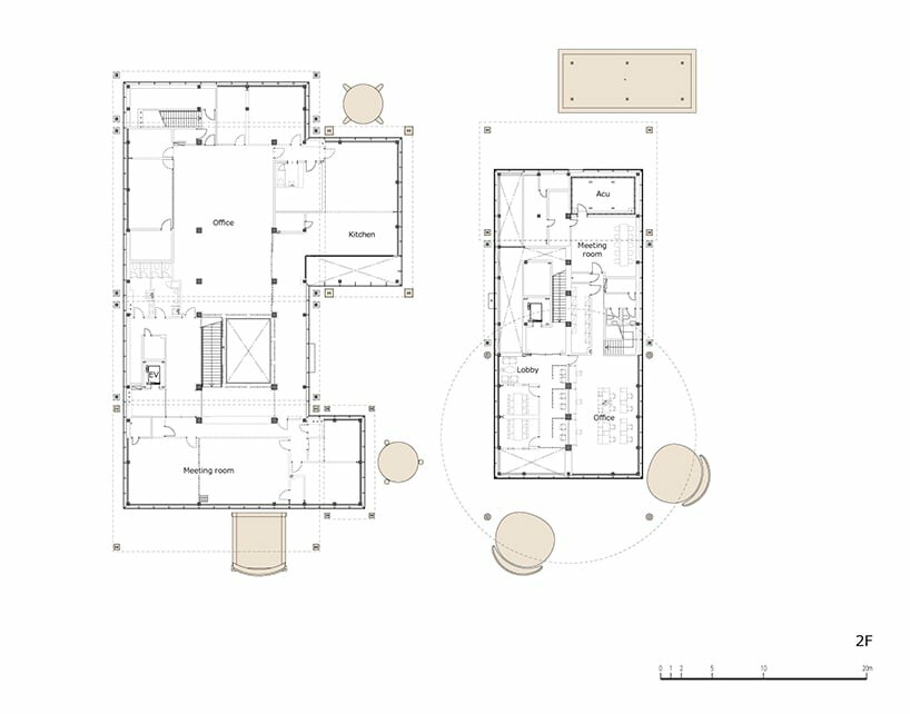
Tokyo-based firm Nikken Sekkei shelters Japanese sweet company Shunkado’s headquarters in Hamamatsu City, Japan, with a set of giant wooden chairs and table. The whimsical mixed-use facility, titled Sweets Bank, houses offices, shops, and a restaurant and cafe, as well as a bank within a pair of glass volumes. Creating a new monument for the town and sweets brand, it is shaped by the concepts of creating ‘a large living room in the city’ where people can gather, and Shunkado’s corporate slogan: ‘We want people to spend family time at the table with sweets’. The aim was to create vitality in the city via a community-based complex that connects people,’ note the architects.

giant set of chairs and table shelters nikken sekkei's mixed-use 'sweets bank' in japan
a set of giant wooden chairs and table shelters the complex | all images by Kenta Hasegawa

 

 

Nikken sekkei tops glass volumes with giant dining set-up

 

Sweets Banks is composed of two major elements: furniture as shelter from the rain and sun, and glass boxes that ensure comfort for users within. The oversized table and chairs, expanded by 13 times their actual size, were modelled closely on the dimensions of actual furniture to also resolve structural, drainage, and mechanical systems. Meanwhile, the glass boxes were designed abstractly though simple in detail to serve as a clear backdrop to the giant sculptures.

 

Sweets Banks is designed to be curious, eye-catching, and ‘Instagrammable’ to enhance the image of both the town and the brand. ‘In the modern age of social media, in which a single photo can instantly capture hearts and minds, the image of the building itself becomes the medium, attracts people to regional cities, and creates memorable experiences for posting to the world,’ notes the team at Nikken Sekkei.

giant set of chairs and table shelters nikken sekkei's mixed-use 'sweets bank' in japan
Nikken Sekkei draws on the concept of creating ‘a large living room in the city’

giant set of chairs and table shelters nikken sekkei's mixed-use 'sweets bank' in japan
glass volumes allow the sculptural wood to take center stage

giant set of chairs and table shelters nikken sekkei's mixed-use 'sweets bank' in japan
the monumental scale has enhanced the presence of both the brand and the city

giant set of chairs and table shelters nikken sekkei's mixed-use 'sweets bank' in japan
the mixed-use facility houses offices, shops, and a restaurant and cafe

nikken-sekkei-sweets-bank-designboom-5

giant set of chairs and table shelters nikken sekkei's mixed-use 'sweets bank' in japan
the oversized table and chairs have been expanded by 13 times their actual size

giant set of chairs and table shelters nikken sekkei's mixed-use 'sweets bank' in japan

nikken-sekkei-sweets-bank-designboom-6

 

1/4
giant set of chairs and table shelters nikken sekkei’s mixed-use ‘sweets bank’ in japan
 
giant set of chairs and table shelters nikken sekkei’s mixed-use ‘sweets bank’ in japan
 
giant set of chairs and table shelters nikken sekkei’s mixed-use ‘sweets bank’ in japan
 
giant set of chairs and table shelters nikken sekkei’s mixed-use ‘sweets bank’ in japan
 

project info:

 

name: Sweets Bank

location: Hamamatsu City, Japan

architecture: Nikken Sekkei

interior design: TANSEISHA 

construction: SHIMIZU CORPORATION

 

 

designboom has received this project from our DIY submissions feature, where we welcome our readers to submit their own work for publication. see more project submissions from our readers here.

 

edited by: ravail khan | designboom

KEEP UP WITH OUR DAILY AND WEEKLY NEWSLETTERS
suscribe on designboom
- see sample
- see sample
suscribe on designboom

ARCHITECTURE IN JAPAN (1378)

NIKKEN SEKKEI (19)

RESTAURANT AND CAFé DESIGN (727)

RETAIL INTERIORS (594)

WHERE PEOPLE WORK (798)

PRODUCT LIBRARY

a diverse digital database that acts as a valuable guide in gaining insight and information about a product directly from the manufacturer, and serves as a rich reference point in developing a project or scheme.

between greece and scandinavia: studio visit and interview with block722 architects Jul 23, 2023
between greece and scandinavia: studio visit and interview with block722 architects
as block722 recently settled into its new headquarters in athens, designboom had the opportunity to visit the studio and speak with its founders to learn more about the practice's origins, identity, and creative process.

designboom will always be there for you

milan, new york, beijing, tokyo,  since 1999
X
5