reflective aluminum framework crowns the clifftop house by KONTEXTUS in hungary

reflective aluminum framework crowns the clifftop house by KONTEXTUS in hungary

The clifftop house by KONTEXTUS stands along Lake Balaton

 

Nestled in a small village along the North-East coast of Lake Balaton in Hungary, The Clifftop House by KONTEXTUS studio embraces the site’s unique topography. Set atop the lofty limestone cliffs, the plot offers views of Lake Balaton, a natural spectacle that informs the design of the contemporary retreat. The residence seamlessly blends with the surrounding landscape and interacts with the setting. The house’s layout arranges private functions, including bedrooms with en suite bathrooms, on the ground floor, while the upper floor features the kitchen, living room, and a master bedroom that boasts panoramic lake views. To optimize the breathtaking panorama, the outdoor terrace and swimming pool are elevated to half a level, enhancing the overall experience.

reflective aluminum framework crowns the clifftop house by KONTEXTUS in hungary
all images by Matyas Borsos

 

 

limestone and reflective aluminum COMPOSE the exterior

 

The design team‘s initial concept aims for a composition that resembles a ‘leftover limestone monolith’ serving as a solid foundation for the pavilion above. This effect is achieved by thoughtfully manipulating the terrain, and gradually increasing its elevation up to the level of the terrace. The load-bearing structure exhibits a combination of materials, with reinforced concrete forming the ground floor and a lightweight steel structure creating the upper pavilion. The facade of the ground floor applies limestone cladding, imparting a monolithic quality, while the upper volume is wrapped in anodized aluminum cladding introducing a subtle glossiness and reflective surface. The interplay of materials allows the pavilion to harmoniously reflect the ever-changing natural landscape.

reflective aluminum framework crowns the clifftop house by KONTEXTUS in hungary
a composition that resembles a ‘leftover limestone monolith’

reflective aluminum framework crowns the clifftop house by KONTEXTUS in hungary
the outdoor terrace and swimming pool are elevated to half a level

reflective aluminum framework crowns the clifftop house by KONTEXTUS in hungary
the volume applies anodized aluminum cladding introducing a subtle glossiness and reflective surface

the-clifftop-house-designboom-1800-1

reflective aluminum framework crowns the clifftop house by KONTEXTUS in hungary
reinforced concrete foundation supports the lightweight steel structure

reflective aluminum framework crowns the clifftop house by KONTEXTUS in hungary
the pavilion showcases an interplay of materials

reflective aluminum framework crowns the clifftop house by KONTEXTUS in hungary
limestone cladding and tiling imparts a monolithic quality

the-clifftop-house-designboom-1800-2

 

1/5
location - material - concept diagram
location - material - concept diagram
section drawing
section drawing
basement floor plan drawing
basement floor plan drawing
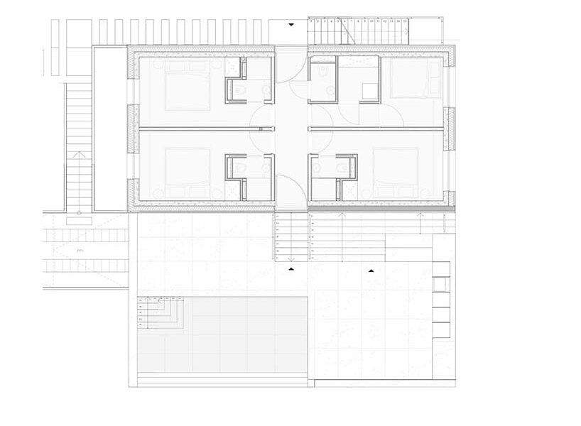
ground floor plan drawing
ground floor plan drawing
first floor plan drawing
first floor plan drawing

project info:

 

name: The clifftop house
designer: KONTEXTUS studio | @gabor.kovacs.arch

location: North-East coast of Lake Balaton, Hungary

photography: Matyas Borsos | @matyasborsos

 

structural designer: LAPIDARIUM structures 

construction detail designer: Páricsy and Partners Architects

landscape architect: GEUM

interior designer: PROJECT MA

electrical engineer: Amperos

mechanical engineer: Re-Aktív

general contractor: Toldy Consult

structural contractor: JSP Builder

 

 

designboom has received this project from our DIY submissions feature, where we welcome our readers to submit their own work for publication. see more project submissions from our readers here.

 

edited by: christina vergopoulou | designboom

KEEP UP WITH OUR DAILY AND WEEKLY NEWSLETTERS
suscribe on designboom
- see sample
- see sample
suscribe on designboom

PRODUCT LIBRARY

a diverse digital database that acts as a valuable guide in gaining insight and information about a product directly from the manufacturer, and serves as a rich reference point in developing a project or scheme.

between greece and scandinavia: studio visit and interview with block722 architects Jul 23, 2023
between greece and scandinavia: studio visit and interview with block722 architects
as block722 recently settled into its new headquarters in athens, designboom had the opportunity to visit the studio and speak with its founders to learn more about the practice's origins, identity, and creative process.

designboom will always be there for you

milan, new york, beijing, tokyo,  since 1999
X
5